MANAIA

8B South Road, MANAIA

SOLD

Contact for price

2 Bed

1 Bath

1 Living

2 Garage

105 m² Floor

616 m² Land

(SOLD)

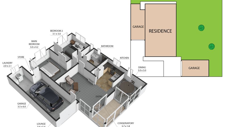
Perfect private downsizer

If low maintenance, sunny, secure, affordable AND an amazing mountain view are important to you, 8B South Road in Manaia is available NOW. Built in 1989, this brick 105sqm townhouse is privately positioned on a rear 616sqm freehold section. Well maintained interior in good condition with heatpump and HRV. Recent upgrades include new drapes throughout, new electric stove and roof replaced a few years ago with new fascias and soffits. Off street parking, internal auto single garage PLUS freestanding auto single garage.

Enjoy your own rear yard, not typical of a standard townhouse and experience the ease of living on offer here. An easy commute to Hawera, short stroll to treat yourself from 'Yarrows The Bakers' and return to enjoy a cuppa and mountain views from your conservatory. The perfect private downsizer!

Read More

Specifications

Land Area
616 m²
Floor Size
105 m²

Share this property

No results found

Floor Plans

THINKING OF SELLING?

BOOK AN APPRAISAL

"*" indicates required fields

This field is for validation purposes and should be left unchanged.